
一、概述
KYN28-12金屬鎧裝移開式金屬封閉開關設備(以下簡稱開關設備),系3.6—12kV三相交流50Hz單母線及單母線分段系統的成套配電裝置。主要用于發電廠、中小型發電機送電、工礦企事業配電以及電力系統的二次變電所的受電、送電及大型高壓電動機起動等。實行控制保護、監測之用。本開關設備滿足GB3906、IEC60298等標準要求,具有防止帶負荷推拉斷路器手車、防止誤分、合斷路器、防止接地開關處在閉合位置誤合斷路器、防止誤入帶電隔室、防止在帶電時誤合接地開關的聯鎖功能,既可配用國產VS1、VSm、VS1+型真空斷路器,也可配用ABB公司的VD4型真空斷路器,也可根據用戶需求配置永磁真空斷路器,是一種性能優越的配電設備。
二、使用環境條件
1、周圍空氣溫度:上限:+40℃ 下限:-10℃;
2、海拔高度:產品使用在12kV時,海拔高度4000m以下;
3、相對環境濕度:日平均相對濕度≤95%,月平均相對濕度≤90%;
4、地震裂度:8度;
5、周圍空氣應不受腐蝕性或可燃性氣體、水蒸氣等明顯污染;
6、無嚴重污穢及經常性的劇烈震動,嚴酷條件下嚴酷度設計滿足1類要求;
三、型號及其含義

四、主要技術參數

五、結構特點
1、開關柜由固定的柜體和可移開部件(簡稱手車)兩大部分組成。根據柜內電氣設備的功能,柜體用隔板分成四個不同的功能單元:母線室、斷路器室、電纜室和低壓室。柜體的外殼和各功能單元之間隔板均采用敷鋁鋅板和普通鋼板栓接而成。
2、開關柜外殼的防護等級為IP4X,當斷路器室門打開、手車移開時,防護等級為IP2X。
3、開關柜柜體內還可安裝避雷器、帶電顯示器、綜合保護裝置、計量表計等元件,保證了對服務電網的控制、保護和監測等。
4、考慮到開關柜的安裝和調試方便,開關柜可分為柜前維護結構和雙面維護結構。
A、母線室
主母線是單臺拼接相互貫穿聯接,通過支母線和靜觸頭盒固定。主母線和聯絡母線為矩形截面的銅排;用于大電流負荷時采用雙根母排拼成。支母線通過螺栓聯接于靜觸頭盒和主母線,不需要其它支撐。

B、斷路器室
在斷路器隔室內安裝了特定的導軌,使斷路器手車在柜內滑行與工作。手車能在試驗位置、工作位置之間移動。

C、電纜室
電纜隔室的后壁可安裝電流互感器、接地開關,隔室后下部可安裝避雷器。將手車和可抽出式水平隔板移開后,施工人員就能從正面進入柜內安裝和維護。

D、低壓儀表器室
低壓儀表室內可安裝繼電保護元件、儀表、帶電指示器,以及特殊要求的二次設備。控制線路敷設在足夠空間的線槽內,并有金屬蓋板,可使二次線與高壓室隔離。其左側線槽是為控制小線的引進和引出預留的,開關柜自身內部的小線敷設在右側。在繼電器儀表室的側板上還留有便于施工的小母線穿越孔。接線時,儀表室頂蓋板可供翻轉,便于小母線的安裝。

六、開關柜主要元器件配置
斷路器:
VD4-12、VS1-12、VEP-12、HVX-12等;

繼電保護裝置:
PCS-9600CS(南京南瑞)、CSC-200(北京四方);
WGB系列(許繼集團)、WDZ-5200(江蘇金智)等;

互感器:
電流互感器:LZZBJ9-10A、LZZQ8-10;
電壓互感器:JDZ10-10、JDZX10-10;
零序電流互感器:LXK-10、LJ-7;



七、開關柜結構外形及安裝基礎
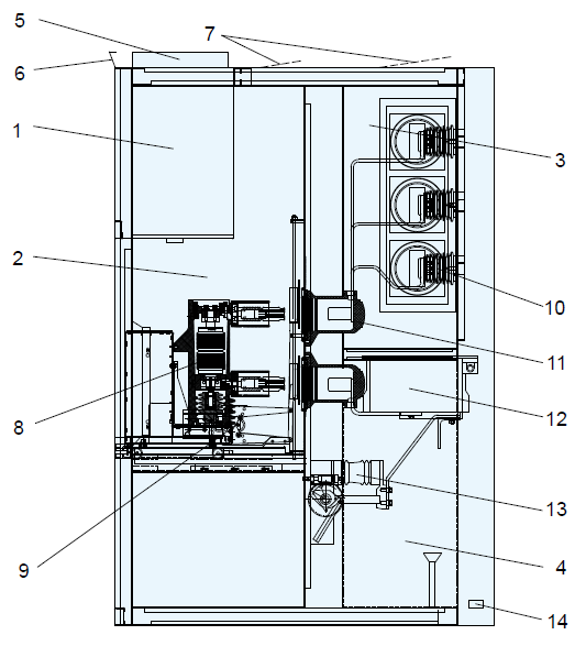
1、KYN28-12開關柜基本結構剖面圖

開關柜注解說明:
1、低壓儀表室 2、斷路器室 3、母線室 4、電纜室
5、控制小母線室 6、用途眉頭 7、泄壓通道 8、斷路器
9、活門提升機構 10、絕緣子 11、觸頭盒 12、電流互感器
13、接地開關 14、主接地排孔
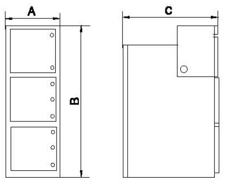
2、KYN28-12開關柜外形尺寸


3、母線與分支母線的聯接形式
1、主母線
2、分支母線
3、螺栓
4、墊塊
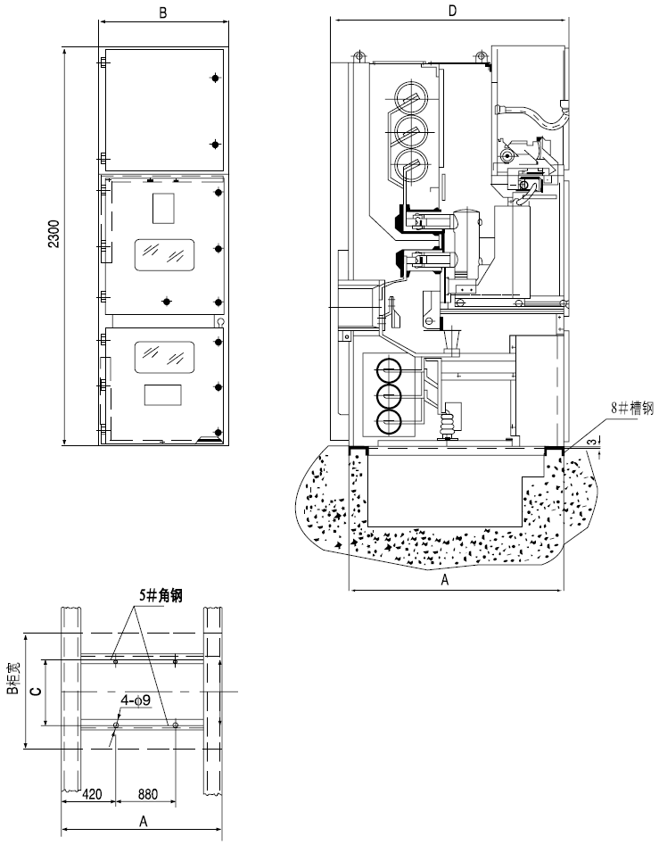
4、安裝基礎示意圖


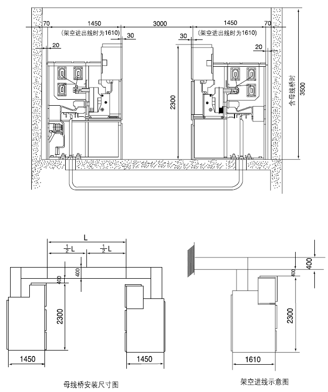
5、樓上安裝示意圖

6、開關柜(面對面)靠墻安裝示意圖

八、開關柜主接線方案圖







方案實例

九、訂貨須知
開關柜訂貨時應提供下列技術資料:
1、主接線方案圖編號、用途和單線系統圖、額定電壓、額定電流、額定短路
開斷電流、配電室平面布置圖及開關柜的排列配置圖等。
2、開關柜控制、測量及保護功能的要求以及其它閉鎖和自動裝置的要求及原
理圖。
3、開關柜內主要電氣元件的型號、規格及數量。
4、如開關柜之間或進線柜需要母線橋連接,應提供母線橋的額定載流量、母
線橋的跨度、距地高度等具體要求數據。
5、開關柜使用在特殊環境條件時,應在訂貨時詳細說明。
6、其它特殊要求。


